열교환기 LTLT

2021.07.17 관리자
0 318


373c71790db9c0813a7ced9a7baf2461_1635488099_131.jpg
586151e9ad3ad568d5ac5acb70fa369f_1626469011_6884.jpg

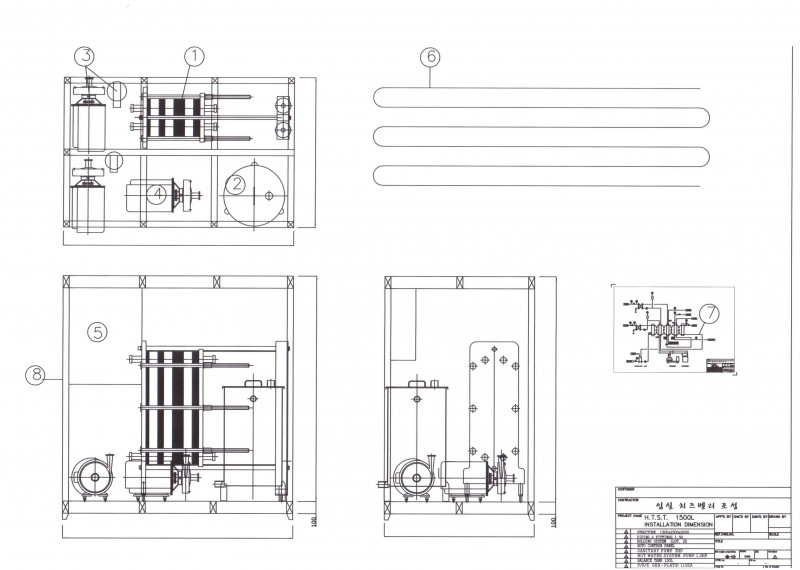
음성 대원테크에 납품중인 사진이며 CAPACITY- 2,000리터/hr 100도 까지 열처리 능력이 있으며 자체 C.I.P 구조로 설계되어 효율적인 제품 생산을 유도 합니다.


586151e9ad3ad568d5ac5acb70fa369f_1626469011_8189.jpg



586151e9ad3ad568d5ac5acb70fa369f_1626469012_204.jpg



586151e9ad3ad568d5ac5acb70fa369f_1626469012_5984.jpg



 



Comments

  1. 등록된 코멘트가 없습니다.